万象企业中心
咨询热线
021-3361 6666
已报名126
  • 万象企业中心
    租赁价格 : 
    4.8元~5.5元/天/㎡
    出租面积 : 
    179平~3000平米(可分割)
    轨道交通 : 
    10号线航中路/9号线七宝站
    楼盘地址 : 
    上海市闵行区号文路229号近上坤路
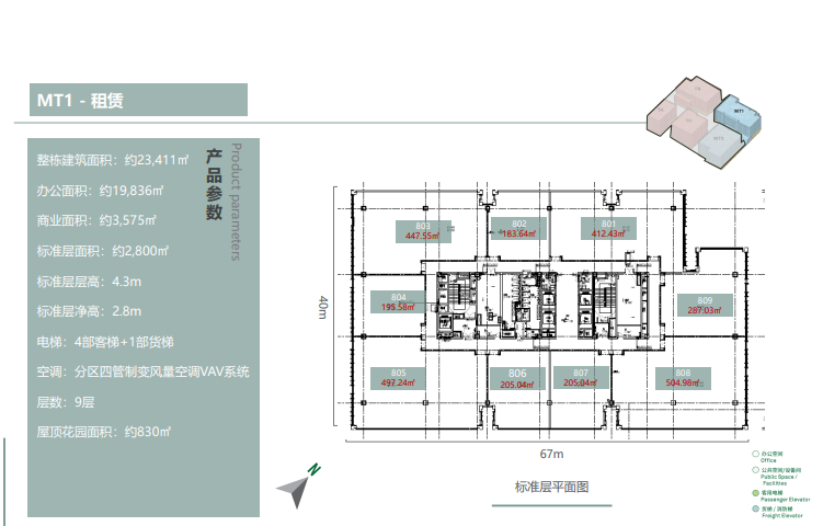
    标准层高 : 
    4.3米 净高2.8米
    交付时间 : 
    2020年8月
    装修情况 : 
    标准交付
    物业公司 : 
    上海永绿置业有限公司
    物业费 : 
    30元/月/平米
    总楼层 : 
    9层
    得房率 : 
    72%
    开发商 : 
    华润置业和华发股份
    咨询热线
    021-3361 6666
    项目简介

    出租面积:179—3000平(可分割),均价5—5.5元/天/㎡

    在售面积:3700平,8300平,9200平,17500平,均价4.9万/㎡

    区域概括

    万象企业中心位于上海大虹桥辐射圈内---七宝生态商务区核心位置。七宝生态商务区位于虹桥综合交通枢纽东南角,东至外环线,南至漕宝路,西至横沥港,北至航南路,总地1888.35亩由中心商务区及闵行文化公园两大板块组成,七宝生态商务区以“国际”“生态”“文化”定位,商务区规划总建筑面积125万方,集合金地商置、万科、宝龙、上坤、华润、华发等多家品牌开发商共同打造,以文化创意产业为特色的国际化生态商务园区。


    虹桥商务区

    虹桥商务区依托虹桥综合交通枢纽和国家会展中心,将建成国家现代服务业发展示范区、长三角区域合作的大平台、上海国际贸易中心建设主要承载区、中国联系世界的重要窗口和门户、具有世界影响力的一流中央商务区,整个商务区总占地86.6平方公里,涉及:闵行,长宁,青浦,嘉定四个区。其中主功能区面积27平方公里,目前重点开发建设的为核心区4.7平方公里,包括1平方公里的国家会展中心。核心区开发规模为地上约500万平方米,地下约280万平方米,共计352栋建筑,目前入驻企业近2000家。


    交通配套

    虹桥综合交通枢纽位于上海中心城区西部,是长三角大都市圈的结构中心。处于上海市区与长三角地区交通衔接的门户位置,将承担上海服务长三角的职能。虹桥综合交通枢纽集民用航空、高速铁路、城际铁路、长途客运、地铁、地面公交、磁悬浮、出租汽车等8种交通方式于一体,是目前世界上最大的综合交通枢纽虹桥枢纽之一。


    项目介绍

    上海万象企业中心坐落于上海东西向中轴线吴中路沿线,影响力辐射整个长三角经济带,占据七宝生态商务区的核心位置,地铁10号线航中站上盖,直线距离100米。项目总建筑面积约14万平米,其中办公建筑面积约8.3万平米,地上9层,地下3层,由5栋生态标准办公楼组成,以及约8000平方米商业建筑面积,其中2栋自持,3栋对外出售。项目导入华润置地的OE2.0,通过智能楼宇体验、社群运营、全新工作场景的打造,实现办公生态的进阶赋能。作为升级版本,OE2.0包含了华润置地在数字化管理及商务生活配套服务在内的全部商务创新成果,并将充分导入品牌乃至集团的强势资源,以商务办公领域综合体的姿态与势能,缔造未来办公新标准。以创新空间(OE SPACE)、多元服务(OE PLUS)、智慧平台(SMART OE)三大板块整合,OE2.0将为上海万象企业中心接管企业与员工商务生活,前瞻客户需求,以高品质商务创新空间为依托,以智慧平台为工具,以多元服务为内容,全面塑造品质商务生活美学。

    沪ICP备2023001052号  咨询热线:021-3361 6666